DIY好き夫婦のこれからの2人暮らし|マンションリノベーション
子どもたちが全員巣立ったので、夫婦2人でゆったりと暮らしたい
2人のお子さまが独立して家を出られ、子育てが1段落したKさまご夫婦。
4人で暮らしてきた家を、これから夫婦2人で住みやすくするためのリノベーションをご依頼いただきました。
最初の打合せでのご要望は、
・個室がいらなくなるのでその分リビングを広く使えるようにしたい。でも何かのときに簡易的に仕切ったりできるようにはしておきたい。
・今お使いの家具を活かせるように計画してほしい。
・部分的にDIYをしたい。
ということでした。
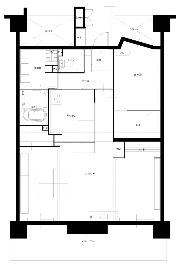
リビングの両隣にあった2部屋の間仕切り壁を撤去し、3LDK→1LDKに。リビングを広く開放的に使えるようにしました。あえて梁型をつくり、将来的にロールスクリーンなどで仕切れるように計画しています。
リビングの一角にはご主人さま・奥さまそれぞれのワークスペースがあり、個室がなくても集中したいときの居場所があるから安心です。
和モダンな雰囲気にしたいということで、梁型に黒い木目のクロスを使用したり、障子を造作したりしています。
キッチンとダイニングで使用していた家具2つをリメイクして対面カウンターにしたり、寝室のWICは形を変えて、元々和室にあった箪笥2つがちょうど入るように計画をしました。
本格的なDIYがお好きで電気工事の資格もお持ちのご主人さま。「ここまでは工事してもらって、その先は自分でやります」など、打合せしながら進めました。
ご自身では難しい専門的な工事・材料を扱うのが難しい工事・マンションなので騒音の出る工事はWAKATTEで施工させていただき、照明の取付・珪藻土・障子の塗装・シート貼り・家具のリメイクなどはDIYをしていただきました。
リビングが明るく広々と快適で、それぞれのお籠りスペースや趣味を楽しめる場所があり、いずれお仕事を引退してからもおうちで過ごす時間が楽しくなりそうな、これからのご夫婦2人のためのリノベーションになりました。



















◾️スタッフコメント 撮影に伺った際、DIYの完成度が高く、引渡時にお渡しした工事で余った内装材も上手にご活用いただいていて驚きました。 ご主人の趣味のために造った棚は既にほぼ埋まっていて、嬉しそうに眺めている姿を見て嬉しくなりました。 DIYは家づくりに参加したという思い出が残せたり、自分で手掛けたことによって、より家に愛着が沸くので好きな人にはお勧めです。